Erweiterung und Sanierung Kantonsschule Sargans
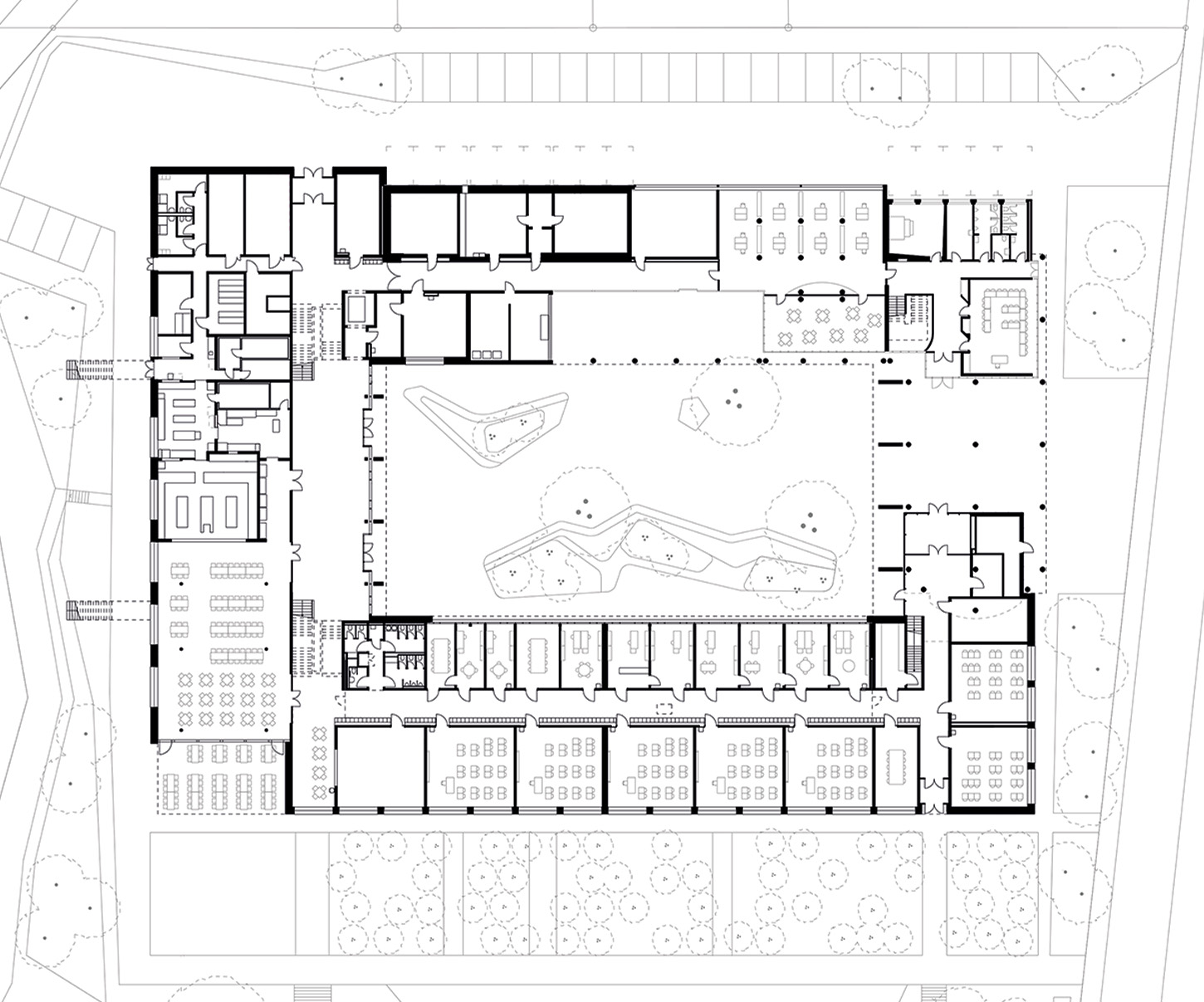
Nach dem Rückbau bis auf den Nord- und Osttrakt formuliert die Ergänzung zusammen mit den bestehenden Bauteilen eine Gesamtanlage um einen zentralen, identitätsstiftenden Hof. Die auch für den Abendbetrieb nutzbaren Allgemeinräume der Schule, Mensa und Aula, werden im neuen Westtrakt zusammengefasst. Die gegen Süden hin ausgerichtete Mensa bietet attraktive Sitzmöglichkeiten im Freien. Die naturwissenschaftlichen Unterrichtsräume im bestehenden Nordtrakt werden mit zusätzlichen Räumen im unmittelbar angrenzenden Westtrakt ergänzt. Im neuen Südtrakt befinden sich Klassenzimmer und die Verwaltung mit dem Lehrerbereich. Durchgehende Erschliessungskorridore bieten in den Obergeschossen kurze Verbindungswege, einen optimalen Betrieb und eröffnen immer wieder den Blick nach Aussen. In diesen erweiterten Korridorzonen befinden sich jeweils die einladenden Aufenthaltsbereiche. Der Nord- und Osttrakt werden weiter betrieben, die Eingriffe werden auf das absolut Notwendige beschränkt.
Auftraggeber: Hochbauamt des Kantons St. Gallen
Auftragsart: Wettbewerb, offenes Verfahren, 1. Preis (Teilbereich Schulerweiterung), 2008
Projektphase: Realisierung
Nutzung: Schulbau mit Aula, Mensa, Bibliothek
Bauingenieur: gbd ZT GmbH, Dornbirn, Austria
Elektroingenieur: Marquart Elektroplanung & Beratung AG, Buchs
HLK-Ingenieur: Amstein + Walthert AG, Frauenfeld
Sanitäringenieur: Tomaschett + Cioce AG, Rorschach
Energieberatung: Edelmann Energie, Zürich
Bauphysik/ Akustik: Geverini Ingenieurbüro AG, St. Gallen
Brandschutzplaner: Balzer Ingenieure AG, Chur
Landschaftsarchitekt: Uniola AG, Zürich
Visualisierung: Swiss Interactive AG, Zürich









